
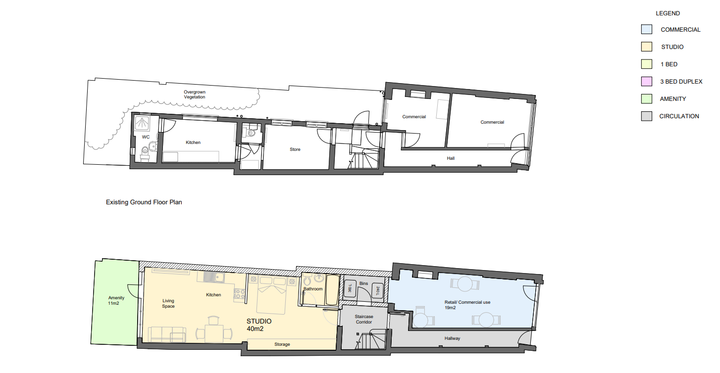
Wandsworth High Street, situated in the vibrant borough of Wandsworth, set out to transform a dilapidated building into a high-end House in Multiple Occupation (HMO) aimed at attracting young professionals. The client’s ambition was to create stylish, comfortable living spaces that foster a sense of community while revitalising the existing structure. MCL Architecture took charge of the project, overseeing the design process, securing planning permissions, and leading a collaborative design team to bring this vision to life.

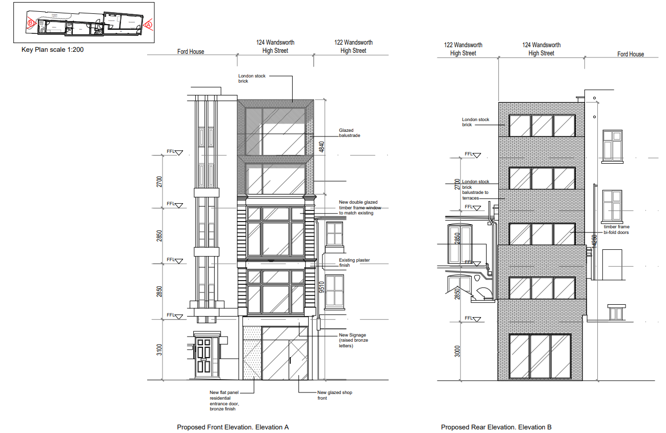
MCL Architecture focused on creating a seamless blend of modern luxury and practical living in the converted building. The design involved extending the existing structure to maximise space and enhance the aesthetic appeal. The inclusion of private gardens and thoughtfully planned amenity spaces allows residents to enjoy outdoor leisure while fostering a vibrant community atmosphere. Each living area features contemporary interiors, smart layouts, and high-quality finishes, catering specifically to the needs of young professionals seeking a balance of style and functionality.

With the completion of the Wandsworth High Street project, the once-neglected building has been transformed into a desirable living space that appeals to young professionals in Wandsworth. The high-end HMO offers not only beautifully designed accommodations but also inviting communal areas that encourage social interaction among residents. MCL Architecture’s expertise in design and project management has turned the client’s vision into reality, revitalising the local area and creating a thriving community hub in the heart of Wandsworth.
.jpg)
Have a project in mind or need expert guidance? MCL Architecture works collaboratively from the outset to turn ideas into well-resolved, deliverable design solutions. Get in touch to discuss how we can support your project from concept through to completion.
Contact Us Today