
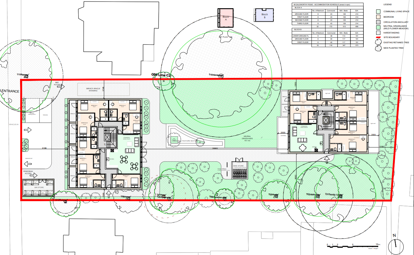
Kingston Co-Living, located in the picturesque area of Kingston, was conceived with the client’s vision of creating a nature-focused co-living scheme that fosters community and connection with the environment. MCL Architecture undertook the project, leading the design process while securing full planning permission. The aim was to transform the site into a harmonious living space that integrates natural elements, ensuring residents can experience the benefits of biophilic design.

MCL Architecture's design centres on a lush communal garden that serves as the heart of the co-living experience, promoting interaction and a sense of belonging among residents. The development emphasizes the use of natural materials, maximizing green spaces, and incorporating indoor plants throughout the living areas. Thoughtful layouts allow for ample light and cross-ventilation, enhancing the wellbeing of inhabitants. The project successfully embodies the principles of biophilic design, creating an inviting atmosphere where nature and community coexist seamlessly.
.jpg)
The completion of Kingston Co-Living has resulted in a transformative living environment that celebrates nature and fosters a sense of community among its residents. With a focus on holistic living, the apartments are designed to promote wellbeing while encouraging collaboration and social engagement through shared outdoor and indoor spaces. MCL Architecture skilfully managed the technical design and coordinated with contractors and the design team, ensuring the project was executed to the highest standards. The development not only enriches the urban landscape of Kingston but also offers a model for future co-living spaces that prioritise nature and community.

Have a project in mind or need expert guidance? MCL Architecture works collaboratively from the outset to turn ideas into well-resolved, deliverable design solutions. Get in touch to discuss how we can support your project from concept through to completion.
Contact Us Today