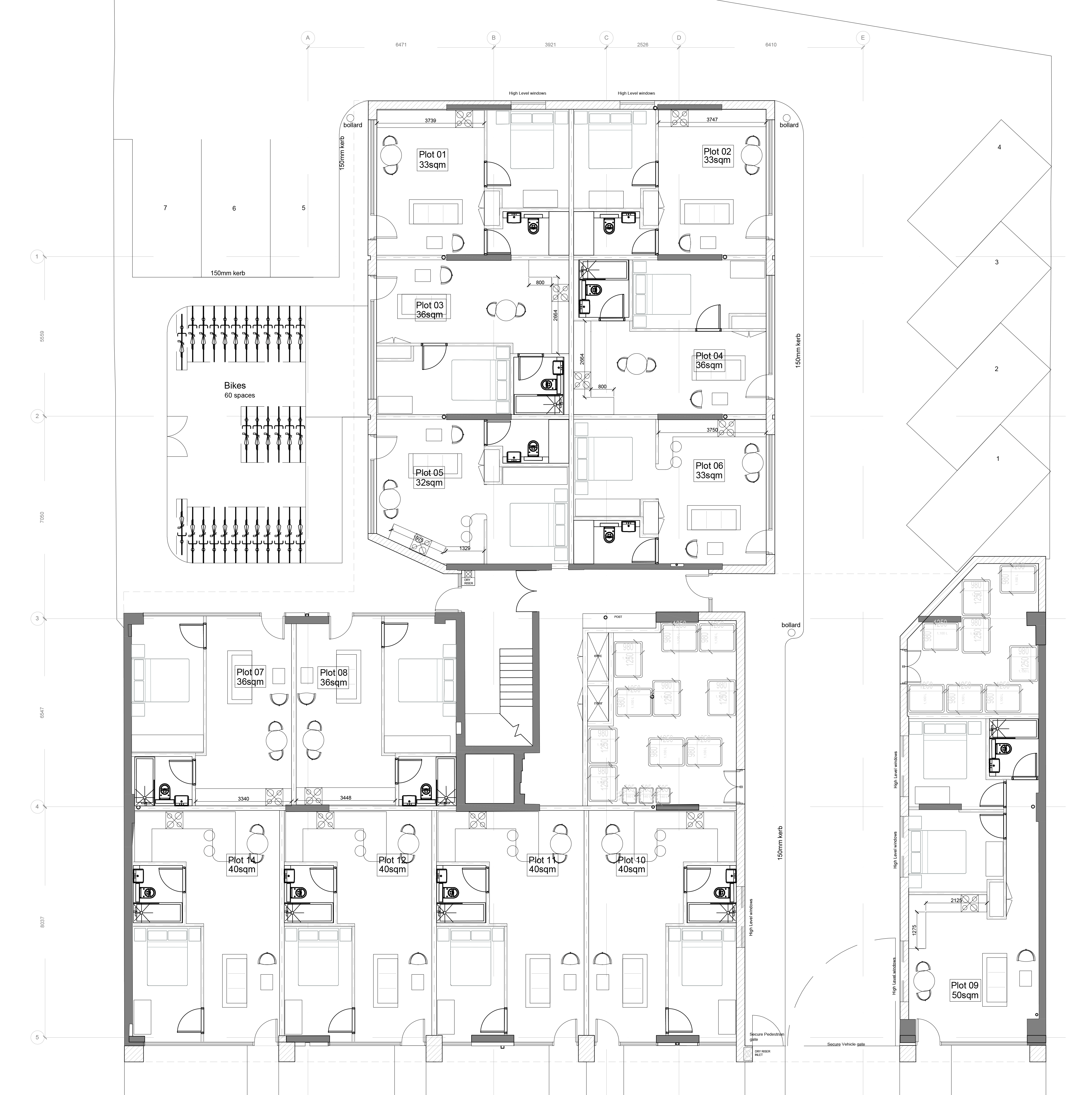
Trinity Point, located on Chertsey Road in Woking, was envisioned as a standout development that enhances the local urban fabric. The project aimed to create a blend of modern living and vibrant community spaces, featuring a series of apartments designed to maximise daylight and views. MCL Architecture took the lead on all design elements, expertly managing the planning process and overseeing the technical design while also guiding a dedicated design team towards successful project delivery.

MCL Architecture focused on delivering a scheme that features tall, striking windows on the new floor, which not only amplify natural light but also provide stunning outlooks for residents. The design prioritises open, airy spaces, allowing for an enjoyable and functional living experience. Each apartment has been meticulously crafted with modern finishes and layouts that cater to contemporary lifestyles, fostering a sense of comfort and style. Additionally, the integration of communal areas enhances social interaction, contributing to a vibrant community atmosphere.
.png)
The completion of Trinity Point marks a significant addition to Woking’s skyline, providing beautiful new homes that embrace modern design while enhancing the urban landscape. The bright and inviting apartments have quickly become a sought-after choice for residents, thanks to their thoughtful design and fantastic views. MCL Architecture’s leadership in planning and design has not only realised the client’s vision but has also transformed Chertsey Road into a dynamic hub of contemporary living.