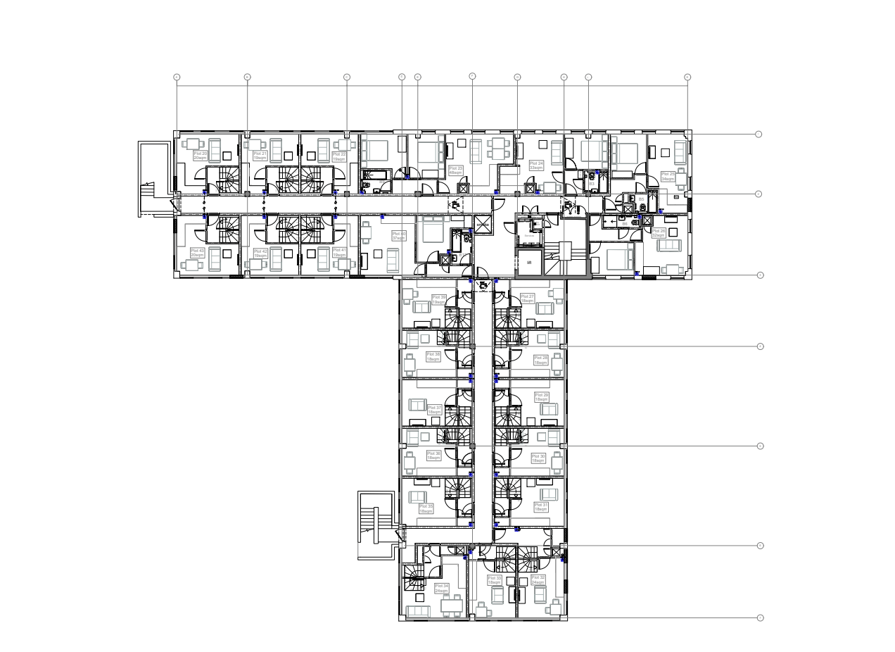
Tempus Court, positioned in the heart of High Wycombe, embarked on an ambitious project to transform an existing office building into a vibrant contemporary apartment complex. The client envisioned revitalising the structure while extending it upwards by two floors to maximise residential space. MCL Architecture took the lead in the technical design, skilfully managing and guiding the design team to ensure a successful transformation that met the client’s vision.

MCL Architecture focused on reimagining the office space into modern apartments, prioritising open layouts and stylish finishes. The design integrates contemporary aesthetics with practical living solutions, including spacious balconies and generous windows that flood the interiors with natural light. The additional two floors provide not only more residential units but also enhance the overall architectural profile of Tempus Court, creating a striking silhouette against the High Wycombe skyline. The project incorporates sustainable design principles, aiming for energy efficiency and comfort for its future residents.

With the completion of Tempus Court, High Wycombe is now home to a dynamic living environment that reflects the needs of its residents while revitalising the urban landscape. The contemporary apartments offer a blend of style and convenience, attracting a diverse community. The successful collaboration led by MCL Architecture has shown how thoughtful design can breathe new life into an existing structure, making Tempus Court a desirable location for modern living and a significant contribution to the city’s evolution.