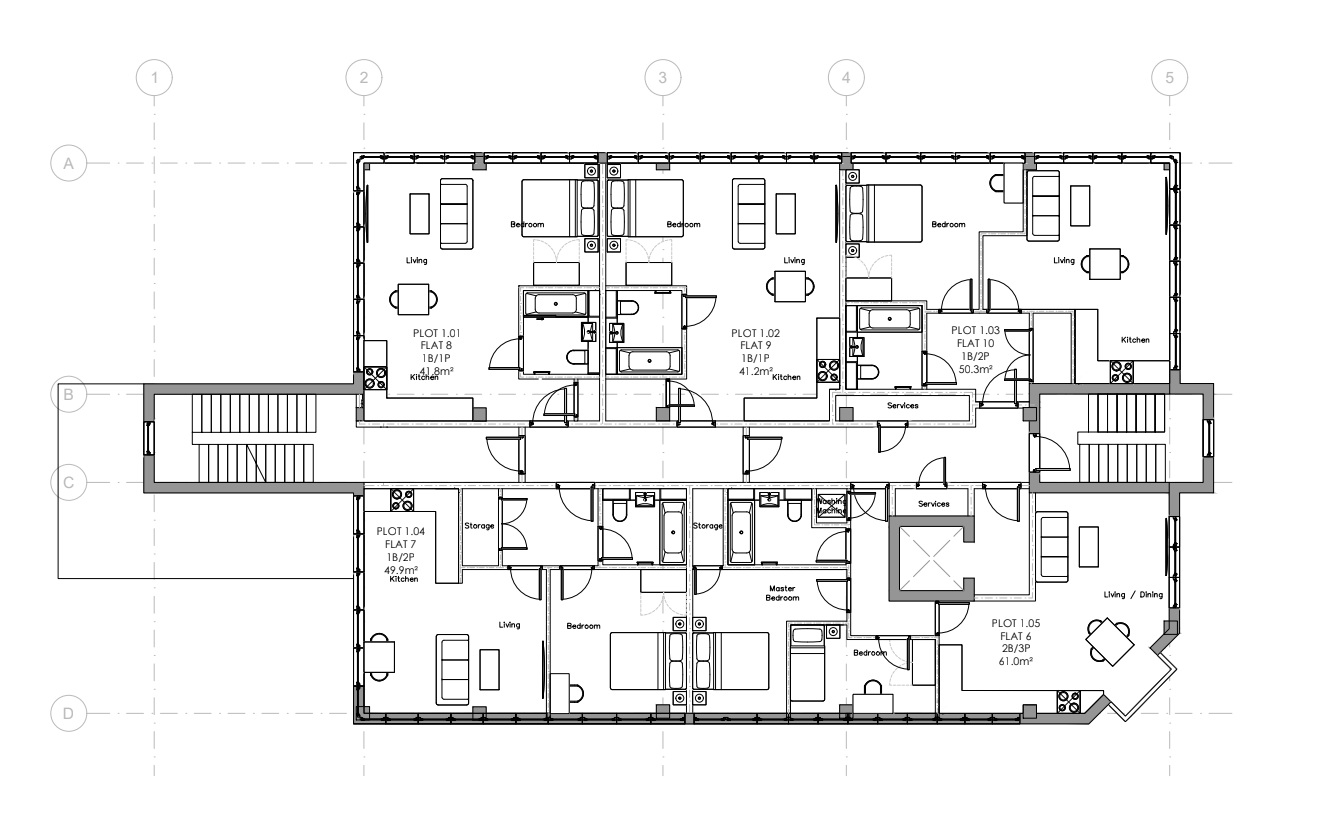
Thornetts House, located in the charming town of Leatherhead, embarked on a transformative project aimed at converting an existing office building into functional contemporary apartments.The client’s vision was clear: to create modern living spaces that cater to the needs of today’s residents while making the best use of the available structure. MCL Architecture took on the challenge, focusing on a design that balances practicality with appealing aesthetics.

MCL Architecture approached the conversion of Thornetts House by reimagining the office layout into well-planned apartments that maximise light and space. The design incorporates open-concept living areas, stylish kitchens, and inviting bedrooms—each thoughtfully crafted to provide comfort and functionality. Large windows and carefully chosen materials help create a welcoming ambiance, while communal spaces promote a sense of community among residents. Sustainable design practices were also integrated to enhance energy efficiency and ensure a smaller environmental footprint.

With the completion of Thornetts House, Leatherhead now boasts a collection of contemporary apartments that meet the demands of modern living. Each unit offers a blend of style and practicality, making the building an attractive option for a variety of residents. The successful conversion, led by MCL Architecture, demonstrates how innovative design can transform commercial spaces into vibrant homes, enriching the community and adding value to the urban landscape of Leatherhead.